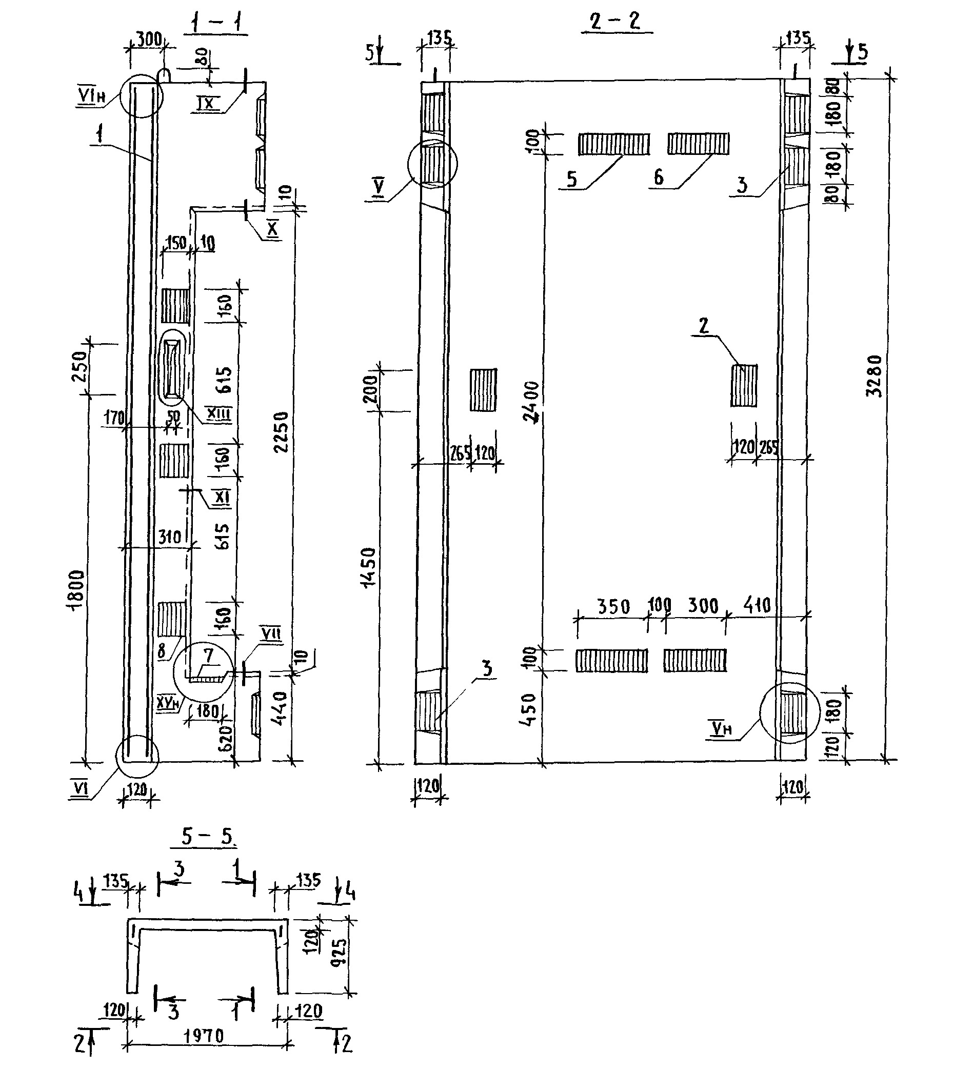
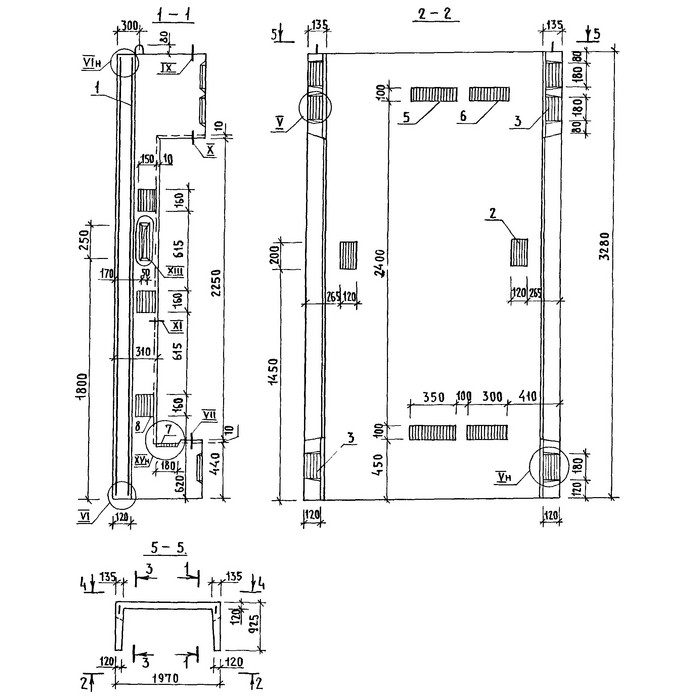
Шахта лифтовая БШЛ 63-42-1 идеально подходит для использования в жилых и коммерческих зданиях, а также в офисных центрах и торговых комплексах. Этот продукт обеспечивает надежную и безопасную работу лифтовой системы, что делает его необходимым элементом в современных зданиях. Шахта лифтовая БШЛ 63-42-1 отличается высоким качеством и соответствует всем стандартам безопасности и надежности.









